
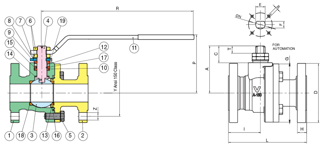
Temperature range: -20°C +180°C.
Vacuum: 10-3 torr.
| Position | Part name | Material | N.° pieces |
|---|---|---|---|
| 1 | BODY | A351-CF8M | 1 |
| 2 | END CONNECTION | A351-CF8M | 1 |
| 3 | BALL | A479-TP316 | 1 |
| 4 | STEM | 17-4-PH | 1 |
| 5 | SCREW | A193 B8 CL.2 | 4-8-12 |
| 6 | NUT | STAINLESS STEEL | 2 |
| 7 | SPRING WASHER | A182-F304 | 2 |
| 8 | 90° STOP | AISI 316 | 1 |
| 9 | BUSH | A479-TP316L | 1 |
| 10 | O-RING | FKM | 1 |
| 11 | HANDLE | AISI 316 | 1 |
| 12 | STEM SEAL | GRAFITE | 1 |
| 13 | O-RING | FKM | 1 |
| 14 | THRUST WASHER | RPTFE | 1 |
| 15 | O-RING BUSH | A479-TP316L | 1 |
| 16 | BODY SEAT | GRAFITE | 1 |
| 17 | O-RING | FKM | 1 |
| 18 | BALL SEAT | RPTFE | 2 |
| 19 | SCREW | A2-70 | 2 |
| SIZE | DN | CODE | D | Y | Z | H | I | L | G | P | R | A | C | T | E | F | ØN | B | Kv | PN | Kg |
|---|---|---|---|---|---|---|---|---|---|---|---|---|---|---|---|---|---|---|---|---|---|
| 1/2" | 15 | 68J00004 | 90 | 60,3 | 4xØ16 | 11,6 | 45,5 | 108 | 82 | 95 | 174 | 54 | 21,5 | 6,8 | M12 | 8 | 42-F04 | M5 | 19,2 | 20 | 2,40 |
| 3/4" | 20 | 68J00005 | 100 | 69,9 | 4xØ16 | 13,5 | 48,5 | 117 | 90 | 99 | 174 | 58 | 21 | 6,8 | M12 | 8 | 42-F04 | M5 | 35 | 20 | 3,30 |
| 1" | 25 | 68J00006 | 110 | 79,4 | 4xØ16 | 14,7 | 53 | 127 | 105 | 100 | 250 | 74,7 | 29 | 9,5 | M16 | 10 | 50-F05 | M6 | 64,5 | 20 | 4,81 |
| 1"1/2 | 40 | 68J00008 | 125 | 98,4 | 4xØ16 | 18 | 94,5 | 165 | 123 | 123 | 321 | 100 | 35,5 | 15,5 | M20 | 14 | 50-F05 | M6 | 174 | 20 | 8,70 |
| 2" | 50 | 68J00010 | 150 | 120,5 | 4xØ19 | 19,5 | 76 | 178 | 140 | 133 | 321 | 108,5 | 36,5 | 16,5 | M20 | 14 | 50-F05 | M6 | 301,3 | 20 | 11,90 |
| 3" | 80 | 68J00014 | 190 | 152,4 | 4xØ19 | 24,3 | 82 | 203 | 188 | 167 | 381 | 149,5 | 44,5 | 20,5 | M24 | 18 | 70-F07 | M8 | 872,5 | 20 | 24,10 |
| 3"x2" | 80x50 | 68J00061 | 190 | 152,4 | 4xØ19 | 24,3 | 88,5 | 203 | 240 | 133 | 321 | 108,5 | 36,5 | 14,5 | M20 | 14 | 50-F05 | M6 | 146 | 20 | 17,10 |
| 4" | 100 | 68J00018 | 230 | 190,5 | 8xØ19 | 24,3 | 90 | 229 | 235 | 186 | 381 | 167 | 42,5 | 18,5 | M24 | 18 | 102-F10 | M10 | 1363,3 | 20 | 38,50 |
| 4"x3" | 100x80 | 68J00064 | 230 | 290,5 | 8xØ19 | 24,3 | 95 | 229 | 188 | 167 | 381 | 149,5 | 44,5 | 20,5 | M24 | 18 | 70-F07 | M8 | 418 | 20 | 29,60 |
| 6"* | 150 | 68J00020 | 280 | 241,3 | 8xØ22 | 26 | 241 | 394 | 315 | - | - | 245 | 68 | 41 | M42 | 30 | 125-F12 | M12 | 3671,1 | 20 | 85,80 |
| 6"x4" | 150x100 | 68J00074 | 280 | 241,3 | 8xØ22 | 26 | 120 | 394 | 235 | 186 | 381 | 167 | 42 | 18,5 | M24 | 18 | 102-F10 | M10 | 754 | 20 | 53,60 |
*Gear operator included.

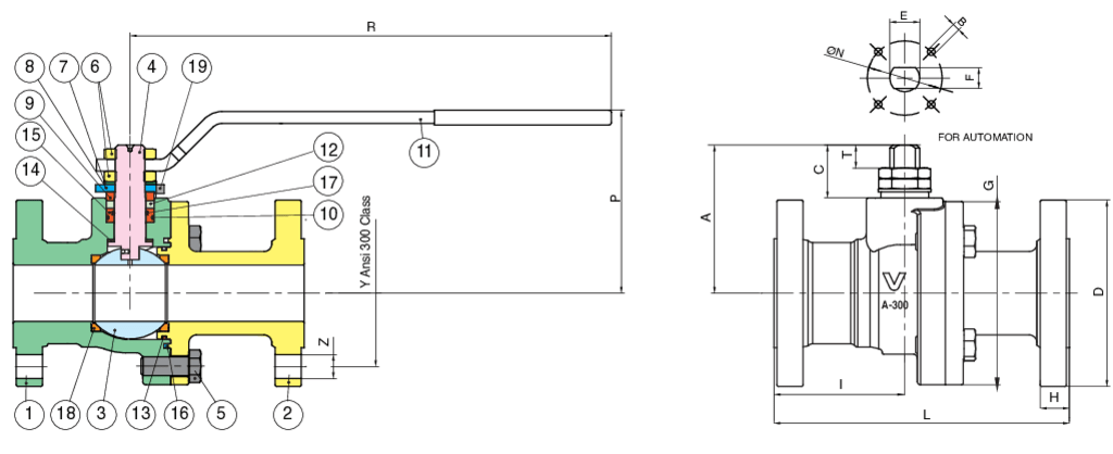
Temperature range: -20°C +180°C.
Vacuum: 10-3 torr.
| Position | Part name | Material | N.° pieces |
|---|---|---|---|
| 1 | BODY | ASTM A995-GR. 6 | 1 |
| 2 | END CONNECTION | ASTM A995-GR. 6 | 1 |
| 3 | BALL | UNS S32760 | 1 |
| 4 | STEM | UNS S32760 | 1 |
| 5 | SCREW | A193 B8 CI.2 | 4-8-12 |
| 6 | NUT | STAINLESS STEEL | 2 |
| 7 | SPRING WASHER | STAINLESS STEEL | 2 |
| 8 | 90° STOP | AISI 316 | 1 |
| 9 | BUSH | A479-TP316L | 1 |
| 10 | O-RING | FKM | 1 |
| 11 | HANDLE | AISI 316 | 1 |
| 12 | STEM SEAL | GRAPHITE | 1 |
| 13 | O-RING | FKM | 1 |
| 14 | THRUST WASHER | RPTFE | 1 |
| 15 | O-RING BUSH | UNS S32760 | 1 |
| 16 | BODY SEAT | GRAPHITE | 1 |
| 17 | O-RING | FKM | 1 |
| 18 | BALL SEAT | RPTFE | 2 |
| 19 | SCREW | A2-70 | 2 |
| SIZE | DN | CODE | D | Y | Z | H | I | L | G | P | R | A | C | T | E | F | ØN | B | Kv | PN | Kg |
|---|---|---|---|---|---|---|---|---|---|---|---|---|---|---|---|---|---|---|---|---|---|
| 1/2" | 15 | 68R01504 | 90 | 60,3 | 4xØ16 | 11,6 | 45,5 | 108 | 82 | 95 | 174 | 54 | 21,5 | 6,8 | M12 | 8 | 42-F04 | M5 | 19,2 | 20 | 2,40 |
| 3/4" | 20 | 68R01505 | 100 | 69,9 | 4xØ16 | 13,5 | 48,5 | 117 | 90 | 99 | 174 | 58 | 21 | 6,8 | M12 | 8 | 42-F04 | M5 | 35 | 20 | 3,30 |
| 1" | 25 | 68R01506 | 110 | 79,4 | 4xØ16 | 14,7 | 53 | 127 | 105 | 100 | 250 | 74,7 | 29 | 9,5 | M16 | 10 | 50-F05 | M6 | 64,5 | 20 | 4,81 |
| 1"1/2 | 40 | 68R01508 | 125 | 98,4 | 4xØ16 | 18 | 94,5 | 165 | 123 | 123 | 321 | 100 | 35,5 | 15,5 | M20 | 14 | 50-F05 | M6 | 174 | 20 | 8,70 |
| 2" | 50 | 68R01510 | 150 | 120,5 | 4xØ19 | 19,5 | 76 | 178 | 140 | 133 | 321 | 108,5 | 36,5 | 16,5 | M20 | 14 | 50-F05 | M6 | 301,3 | 20 | 11,90 |
| 3" | 80 | 68R01514 | 190 | 152,4 | 4xØ19 | 24,3 | 82 | 203 | 188 | 167 | 381 | 149,5 | 44,5 | 20,5 | M24 | 18 | 70-F07 | M8 | 872,5 | 20 | 24,10 |
| 4" | 100 | 68R01518 | 230 | 190,5 | 8xØ19 | 24,3 | 90 | 229 | 235 | 186 | 381 | 167 | 42,5 | 18,5 | M24 | 18 | 102-F10 | M10 | 1363,3 | 20 | 38,50 |
| 6" | 150 | 68R01520 | 280 | 241,3 | 8xØ22 | 26 | 241 | 394 | 315 | - | - | 245 | 68 | 41 | M42 | 30 | 125-F12 | M12 | 3671,1 | 20 | 85,80 |
*Gear operator included.

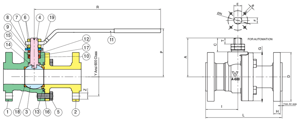
Temperature range: -20°C +180°C.
Vacuum: 10-3 torr.
| Position | Part name | Material | N.° pieces |
|---|---|---|---|
| 1 | BODY | A352-LCC | 1 |
| 2 | END CONNECTION | A352-LCC | 1 |
| 3 | BALL | A479-TP316 | 1 |
| 4 | STEM | 17-4-PH | 1 |
| 5 | SCREW | A320 L7 | 4-8-12 |
| 6 | NUT | CARBON STEEL | 2 |
| 7 | SPRING WASHER | CARBON STEEL | 2 |
| 8 | 90° STOP | AISI 316 | 1 |
| 9 | BUSH | A479-TP316L | 1 |
| 10 | O-RING | FKM | 1 |
| 11 | HANDLE | CARBON STEEL | 1 |
| 12 | STEM SEAL | GRAFITE | 1 |
| 13 | O-RING | FKM | 1 |
| 14 | THRUST WASHER | RPTFE | 1 |
| 15 | O-RING BUSH | A479-TP316L | 1 |
| 16 | BODY SEAT | GRAFITE | 1 |
| 17 | O-RING | FKM | 1 |
| 18 | BALL SEAT | RPTFE | 2 |
| 19 | SCREW | CARBON STEEL | 2 |
| SIZE | DN | CODE | D | Y | Z | H | I | L | G | P | R | A | C | T | E | F | ØN | B | Kv | PN | Kg |
|---|---|---|---|---|---|---|---|---|---|---|---|---|---|---|---|---|---|---|---|---|---|
| 1/2" | 15 | 68F00004 | 90 | 60,3 | 4xØ16 | 11,6 | 45,5 | 108 | 82 | 95 | 174 | 54 | 21,5 | 6,8 | M12 | 8 | 42-F04 | M5 | 19,2 | 20 | 2,40 |
| 3/4" | 20 | 68F00005 | 100 | 69,9 | 4xØ16 | 13,5 | 48,5 | 117 | 90 | 99 | 174 | 58 | 21 | 6,8 | M12 | 8 | 42-F04 | M5 | 35 | 20 | 3,30 |
| 1" | 25 | 68F00006 | 110 | 79,4 | 4xØ16 | 14,7 | 53 | 127 | 105 | 100 | 250 | 74,7 | 29 | 9,5 | M16 | 10 | 50-F05 | M6 | 64,5 | 20 | 4,81 |
| 1"1/2 | 40 | 68F00008 | 125 | 98,4 | 4xØ16 | 18 | 94,5 | 165 | 123 | 123 | 321 | 100 | 35,5 | 15,5 | M20 | 14 | 50-F05 | M6 | 174 | 20 | 8,70 |
| 2" | 50 | 68F00010 | 150 | 120,5 | 4xØ19 | 19,5 | 76 | 178 | 140 | 133 | 321 | 108,5 | 36,5 | 16,5 | M20 | 14 | 50-F05 | M6 | 301,3 | 20 | 11,90 |
| 3" | 80 | 68F00014 | 190 | 152,4 | 4xØ19 | 24,3 | 82 | 203 | 188 | 167 | 381 | 149,5 | 44,5 | 20,5 | M24 | 18 | 70-F07 | M8 | 872,5 | 20 | 24,10 |
| 3"x2" | 80x50 | 68F00061 | 190 | 152,4 | 4xØ19 | 24,3 | 88,5 | 203 | 240 | 133 | 321 | 108,5 | 36,5 | 14,5 | M20 | 14 | 50-F05 | M6 | 146 | 20 | 17,10 |
| 4" | 100 | 68F00018 | 230 | 190,5 | 8xØ19 | 24,3 | 90 | 229 | 235 | 186 | 381 | 167 | 42,5 | 18,5 | M24 | 18 | 102-F10 | M10 | 1363,3 | 20 | 38,50 |
| 4"x3" | 100x80 | 68F00064 | 230 | 290,5 | 8xØ19 | 24,3 | 95 | 229 | 188 | 167 | 381 | 149,5 | 44,5 | 20,5 | M24 | 18 | 70-F07 | M8 | 418 | 20 | 29,60 |
| 6" | 150 | 68F00020 | 280 | 241,3 | 8xØ22 | 26 | 241 | 394 | 315 | - | - | 245 | 68 | 41 | M42 | 30 | 125-F12 | M12 | 3671,1 | 20 | 85,80 |
| 6"x4" | 150x100 | 68F00074 | 280 | 241,3 | 8xØ22 | 26 | 120 | 394 | 235 | 186 | 381 | 167 | 42 | 18,5 | M24 | 18 | 102-F10 | M10 | 754 | 20 | 53,60 |
*Gear operator included.

Temperature range: -20°C +180°C.
Vacuum: 10-3 torr.
| Position | Part name | Material | N.° pieces |
|---|---|---|---|
| 1 | BODY | A351-CF8M | 1 |
| 2 | END CONNECTION | A351-CF8M | 1 |
| 3 | BALL | A479-TP316 | 1 |
| 4 | STEM | 17-4-PH | 1 |
| 5 | SCREW | A193 B8 CL.2 | 4-6-8-12 |
| 6 | NUT | STAINLESS STEEL | 2 |
| 7 | SPRING WASHER | A182-F304 | 2 |
| 8 | 90° STOP | AISI 316 | 1 |
| 9 | BUSH | A479-TP316L | 1 |
| 10 | O-RING | FKM | 1 |
| 11 | HANDLE | AISI 316 | 1 |
| 12 | STEM SEAL | GRAFITE | 1 |
| 13 | O-RING | FKM | 1 |
| 14 | THRUST WASHER | RPTFE | 1 |
| 15 | O-RING BUSH | A479-TP316L | 1 |
| 16 | BODY SEAT | GRAFITE | 1 |
| 17 | O-RING | FKM | 1 |
| 18 | BALL SEAT | RPTFE | 2 |
| 19 | SCREW | A2-70 | 2 |
| SIZE | DN | CODE | D | Y | Z | H | I | L | G | P | R | A | C | T | E | F | ØN | B | Kv | PN | Kg |
|---|---|---|---|---|---|---|---|---|---|---|---|---|---|---|---|---|---|---|---|---|---|
| 1/2" | 15 | 68J10004 | 95 | 66,7 | 4XØ16 | 14,7 | 62,7 | 140 | 82 | 95 | 174 | 54 | 21,5 | 6,8 | M12 | 8 | 42-F04 | M5 | 19,2 | 50 | 3,10 |
| 3/4" | 20 | 68J10005 | 115 | 82,6 | 4XØ19 | 16,3 | 67 | 152 | 90 | 99 | 174 | 58 | 21 | 6,8 | M12 | 8 | 42-F04 | M5 | 35 | 50 | 4,50 |
| 1" | 25 | 68J10006 | 125 | 88,9 | 4XØ19 | 17,9 | 70,5 | 165 | 105 | 100 | 250 | 74,8 | 29 | 9,5 | M16 | 10 | 50-F05 | M6 | 64,5 | 50 | 6,40 |
| 1"1/2 | 40 | 68J10008 | 155 | 114,3 | 4XØ22 | 21,1 | 104 | 190 | 128 | 123 | 321 | 99 | 35,5 | 15,5 | M20 | 14 | 50-F05 | M6 | 174 | 50 | 11,60 |
| 2" | 50 | 68J10010 | 165 | 127 | 8XØ19 | 23 | 90 | 216 | 140 | 133 | 321 | 109 | 37 | 16,5 | M20 | 14 | 50-F05 | M6 | 301,3 | 50 | 14,40 |
| 3" | 80 | 68J10014 | 210 | 168,3 | 8XØ22 | 29 | 122 | 282 | 188 | 167 | 381 | 150 | 44,5 | 20,5 | M24 | 18 | 102-F10 | M10 | 872,5 | 50 | 32,00 |
| 3"x2" | 80x50 | 68J10061 | 210 | 168,3 | 8XØ22 | 29 | 138 | 282 | 140 | 133 | 321 | 109 | 36,5 | 16,5 | M20 | 14 | 50-F05 | M6 | 146 | 50 | 22,10 |
| 4" | 100 | 68J10018 | 255 | 200 | 8XØ22 | 32,2 | 128 | 305 | 235 | 186 | 610 | 167 | 42 | 18,5 | M24 | 18 | 102-F10 | M10 | 1363,3 | 50 | 52,40 |
| 4"x3" | 100x80 | 68J10064 | 255 | 200 | 8XØ22 | 32,2 | 135 | 305 | 188 | 167 | 381 | 150 | 44,5 | 20 | M24 | 18 | 102-F10 | M10 | 418 | 50 | 41,60 |
| 6"* | 150 | 68J10020 | 320 | 269,9 | 12XØ22 | 37 | 200,5 | 403 | 322 | - | - | 245 | 64 | 37,5 | M42 | 30 | 125-F12 | M12 | 3671,1 | 50 | 109,00 |
| 6"x4" | 150x100 | 68J10074 | 320 | 269,9 | 12XØ22 | 37 | 196 | 403 | 235 | 186 | 610 | 167 | 42 | 18,5 | M24 | 18 | 102-F10 | M10 | 754 | 50 | 74,60 |
*Gear operator included.

Temperature range: -20°C +180°C.
Vacuum: 10-3 torr.
| Position | Part name | Material | N.° pieces |
|---|---|---|---|
| 1 | BODY | ASTM A995-GR. 6 | 1 |
| 2 | END CONNECTION | ASTM A995-GR. 6 | 1 |
| 3 | BALL | UNS S32760 | 1 |
| 4 | STEM | UNS S32760 | 1 |
| 5 | SCREW | A193 B8 CI.2 | 4-6-8-12 |
| 6 | NUT | STAINLESS STEEL | 2 |
| 7 | SPRING WASHER | STAINLESS STEEL | 2 |
| 8 | 90° STOP | AISI 316 | 1 |
| 9 | BUSH | A479-TP316L | 1 |
| 10 | O-RING | FKM | 1 |
| 11 | HANDLE | AISI 316 | 1 |
| 12 | STEM SEAL | GRAPHITE | 1 |
| 13 | O-RING | FKM | 1 |
| 14 | THRUST WASHER | RPTFE | 1 |
| 15 | O-RING BUSH | UNS S32760 | 1 |
| 16 | BODY SEAT | GRAFITE | 1 |
| 17 | O-RING | FKM | 1 |
| 18 | BALL SEAT | RPTFE | 2 |
| 19 | SCREW | A2-70 | 2 |
| SIZE | DN | CODE | D | Y | Z | H | I | L | G | P | R | A | C | T | E | F | ØN | B | Kv | PN | Kg |
|---|---|---|---|---|---|---|---|---|---|---|---|---|---|---|---|---|---|---|---|---|---|
| 1/2" | 15 | 68R11504 | 95 | 66,7 | 4xØ16 | 14,7 | 62,7 | 140 | 82 | 95 | 174 | 54 | 21,5 | 6,8 | M12 | 8 | 42-F04 | M5 | 19,2 | 50 | 3,10 |
| 3/4" | 20 | 68R11505 | 115 | 82,6 | 4xØ19 | 16,3 | 67 | 152 | 90 | 99 | 174 | 58 | 21 | 6,8 | M12 | 8 | 42-F04 | M5 | 35 | 50 | 4,50 |
| 1" | 25 | 68R11506 | 125 | 88,9 | 4xØ19 | 17,9 | 70,5 | 165 | 105 | 100 | 250 | 74,8 | 29 | 9,5 | M16 | 10 | 50-F05 | M6 | 64,5 | 50 | 6,40 |
| 1"1/2 | 40 | 68R11508 | 155 | 114,3 | 4xØ22 | 21,1 | 104 | 190 | 128 | 123 | 321 | 99 | 35,5 | 15,5 | M20 | 14 | 50-F05 | M6 | 174 | 50 | 11,60 |
| 2" | 50 | 68R11510 | 165 | 127 | 8xØ19 | 23 | 90 | 216 | 140 | 133 | 321 | 109 | 37 | 16,5 | M20 | 14 | 50-F05 | M6 | 301,3 | 50 | 14,40 |
| 3" | 80 | 68R11514 | 210 | 168,3 | 8xØ22 | 29 | 122 | 282 | 188 | 167 | 381 | 150 | 44,5 | 20,5 | M24 | 18 | 102-F10 | M10 | 872,5 | 50 | 32,00 |
| 4" | 100 | 68R11518 | 255 | 200 | 8xØ22 | 32,2 | 128 | 305 | 235 | 186 | 610 | 167 | 42 | 18,5 | M24 | 18 | 102-F10 | M10 | 1363,3 | 50 | 52,40 |
| 6"* | 150 | 68R11520 | 320 | 269,9 | 12xØ22 | 37 | 200,5 | 403 | 322 | - | - | 245 | 64 | 37,5 | M42 | 30 | 125-F12 | M12 | 3671,1 | 50 | 109,00 |
*Gear operator included.

Temperature range: -20°C +180°C.
Vacuum: 10-3 torr.
| Position | Part name | Material | N.° pieces |
|---|---|---|---|
| 1 | BODY | A352-LCC | 1 |
| 2 | END CONNECTION | A352-LCC | 1 |
| 3 | BALL | A479-TP316 | 1 |
| 4 | STEM | 17-4-PH | 1 |
| 5 | SCREW | A320 L7 | 4-6-8-12 |
| 6 | NUT | CARBON STEEL | 2 |
| 7 | SPRING WASHER | CARBON STEEL | 2 |
| 8 | 90° STOP | AISI 316 | 1 |
| 9 | BUSH | A479-TP316L | 1 |
| 10 | O-RING | FKM | 1 |
| 11 | HANDLE | CARBON STEEL | 1 |
| 12 | STEM SEAL | GRAFITE | 1 |
| 13 | O-RING | FKM | 1 |
| 14 | THRUST WASHER | RPTFE | 1 |
| 15 | O-RING BUSH | A479-TP316L | 1 |
| 16 | BODY SEAT | GRAFITE | 1 |
| 17 | O-RING | FKM | 1 |
| 18 | BALL SEAT | RPTFE | 2 |
| 19 | SCREW | CARBON STEEL | 2 |
| SIZE | DN | CODE | D | Y | Z | H | I | L | G | P | R | A | C | T | E | F | ØN | B | Kv | PN | Kg |
|---|---|---|---|---|---|---|---|---|---|---|---|---|---|---|---|---|---|---|---|---|---|
| 1/2" | 15 | 68F10004 | 95 | 66,7 | 4XØ16 | 14,7 | 62,7 | 140 | 82 | 95 | 174 | 54 | 21,5 | 6,8 | M12 | 8 | 42-F04 | M5 | 19,2 | 50 | 3,10 |
| 3/4" | 20 | 68F10005 | 115 | 82,6 | 4XØ19 | 16,3 | 67 | 152 | 90 | 99 | 174 | 58 | 21 | 6,8 | M12 | 8 | 42-F04 | M5 | 35 | 50 | 4,50 |
| 1" | 25 | 68F10006 | 125 | 88,9 | 4XØ19 | 17,9 | 70,5 | 165 | 105 | 100 | 250 | 74,8 | 29 | 9,5 | M16 | 10 | 50-F05 | M6 | 64,5 | 50 | 6,40 |
| 1"1/2 | 40 | 68F10008 | 155 | 114,3 | 4XØ22 | 21,1 | 104 | 190 | 128 | 123 | 321 | 99 | 35,5 | 15,5 | M20 | 14 | 50-F05 | M6 | 174 | 50 | 11,60 |
| 2" | 50 | 68F10010 | 165 | 127 | 8XØ19 | 23 | 90 | 216 | 140 | 133 | 321 | 109 | 37 | 16,5 | M20 | 14 | 50-F05 | M6 | 301,3 | 50 | 14,40 |
| 3" | 80 | 68F10014 | 210 | 168,3 | 8XØ22 | 29 | 122 | 282 | 188 | 167 | 381 | 150 | 44,5 | 20,5 | M24 | 18 | 102-F10 | M10 | 872,5 | 50 | 32,00 |
| 3"x2" | 80x50 | 68F10061 | 210 | 168,3 | 8XØ22 | 29 | 138 | 282 | 140 | 133 | 321 | 109 | 36,5 | 16,5 | M20 | 14 | 50-F05 | M6 | 146 | 50 | 22,10 |
| 4" | 100 | 68F10018 | 255 | 200 | 8XØ22 | 32,2 | 128 | 305 | 235 | 186 | 610 | 167 | 42 | 18,5 | M24 | 18 | 102-F10 | M10 | 1363,3 | 50 | 52,40 |
| 4"x3" | 100x80 | 68F10064 | 255 | 200 | 8XØ22 | 32,2 | 135 | 305 | 188 | 167 | 381 | 150 | 44,5 | 20 | M24 | 18 | 102-F10 | M10 | 418 | 50 | 41,60 |
| 6"* | 150 | 68F10020 | 320 | 269,9 | 12XØ22 | 37 | 200,5 | 403 | 322 | - | - | 245 | 64 | 37,5 | M42 | 30 | 125-F12 | M12 | 3671,1 | 50 | 109,00 |
| 6"x4" | 150x100 | 68F10074 | 320 | 269,9 | 12XØ22 | 37 | 196 | 403 | 235 | 186 | 610 | 167 | 42 | 18,5 | M24 | 18 | 102-F10 | M10 | 754 | 50 | 74,60 |
*Gear operator included.

Temperature range: -20°C +180°C.
Vacuum: 10-3 torr.
| Position | Part name | Material | N.° pieces |
|---|---|---|---|
| 1 | BODY | A351-CF8M | 1 |
| 2 | END CONNECTION | A351-CF8M | 1 |
| 3 | BALL | A479-TP316 | 1 |
| 4 | STEM | 17-4-PH | 1 |
| 5 | SCREW | A193 B8 CL.2 | 4-6 |
| 6 | NUT | STAINLESS STEEL | 2 |
| 7 | SPRING WASHER | A182-F304 | 2 |
| 8 | 90° STOP | AISI 316 | 1 |
| 9 | BUSH | A479-TP316L | 1 |
| 10 | O-RING | FKM | 1 |
| 11 | HANDLE | AISI 316 | 1 |
| 12 | STEM SEAL | GRAFITE | 1 |
| 13 | O-RING | FKM | 1 |
| 14 | THRUST WASHER | RPTFE | 1 |
| 15 | O-RING BUSH | A479-TP316L | 1 |
| 16 | BODY SEAT | GRAFITE | 1 |
| 17 | O-RING | FKM | 1 |
| 18 | BALL SEAT | RPTFE | 2 |
| 19 | SCREW | A2-70 | 2 |
| SIZE | DN | CODE | D | Y | Z | H | I | L | G | P | R | A | C | T | E | F | ØN | B | Kv | PN | Kg |
|---|---|---|---|---|---|---|---|---|---|---|---|---|---|---|---|---|---|---|---|---|---|
| 1/2" | 15 | 68J40104 | 95 | 66,7 | 4XØ16 | 14,3 | 69 | 165 | 85 | 95 | 174 | 54 | 21,5 | 6,8 | M12 | 8 | 42-F04 | M5 | 19,2 | 100 | 3,60 |
| 3/4" | 20 | 68J40105 | 115 | 82,6 | 4XØ19 | 15,9 | 78,5 | 190 | 95 | 99 | 174 | 58 | 20,5 | 6,8 | M12 | 8 | 42-F04 | M5 | 35 | 100 | 5,10 |
| 1" | 25 | 68J40106 | 125 | 88,9 | 4XØ19 | 17,5 | 97,5 | 216 | 105 | 100 | 250 | 75 | 29 | 10 | M16 | 10 | 50-F05 | M6 | 64,5 | 100 | 7,20 |
| 1"1/2 | 40 | 68J40108 | 155 | 114,3 | 4XØ22 | 22,3 | 130 | 241 | 128 | 123 | 321 | 99,7 | 35,5 | 15,5 | M20 | 14 | 50-F05 | M6 | 174 | 100 | 13,20 |
| 2" | 50 | 68J40110 | 165 | 127 | 8XØ19 | 25,4 | 119,5 | 292 | 144 | 133 | 321 | 109 | 36,5 | 16,5 | M20 | 14 | 50-F05 | M6 | 301,3 | 100 | 17,40 |

Temperature range: -20°C +180°C.
Vacuum: 10-3 torr.
| Position | Part name | Material | N.° pieces |
|---|---|---|---|
| 1 | BODY | ASTM A995-GR. 6 | 1 |
| 2 | END CONNECTION | ASTM A995-GR. 6 | 1 |
| 3 | BALL | UNS S32760 | 1 |
| 4 | STEM | UNS S32760 | 1 |
| 5 | SCREW | A193 B8 CI.2 | 4-6 |
| 6 | NUT | STAINLESS STEEL | 2 |
| 7 | SPRING WASHER | STAINLESS STEEL | 2 |
| 8 | 90° STOP | AISI 316 | 1 |
| 9 | BUSH | A479-TP316L | 1 |
| 10 | O-RING | FKM | 1 |
| 11 | HANDLE | AISI 316 | 1 |
| 12 | STEM SEAL | GRAPHITE | 1 |
| 13 | O-RING | FKM | 1 |
| 14 | THRUST WASHER | RPTFE | 1 |
| 15 | O-RING BUSH | UNS S32760 | 1 |
| 16 | BODY SEAT | GRAPHITE | 1 |
| 17 | O-RING | FKM | 1 |
| 18 | BALL SEAT | RPTFE | 2 |
| 19 | SCREW | A2-70 | 2 |
| SIZE | DN | CODE | D | Y | Z | H | I | L | G | P | R | A | C | T | E | F | ØN | B | Kv | PN | Kg |
|---|---|---|---|---|---|---|---|---|---|---|---|---|---|---|---|---|---|---|---|---|---|
| 1/2" | 15 | 68R41504 | 95 | 66,7 | 4xØ16 | 14,3 | 69 | 165 | 85 | 95 | 174 | 54 | 21,5 | 6,8 | M12 | 8 | 42-F04 | M5 | 19,2 | 100 | 3,60 |
| 3/4" | 20 | 68R41505 | 115 | 82,6 | 4xØ19 | 15,9 | 78,5 | 190 | 95 | 99 | 174 | 58 | 20,5 | 6,8 | M12 | 8 | 42-F04 | M5 | 35 | 100 | 5,10 |
| 1" | 25 | 68R41506 | 125 | 88,9 | 4xØ19 | 17,5 | 97,5 | 216 | 105 | 100 | 250 | 75 | 29 | 10 | M16 | 10 | 50-F05 | M6 | 64,5 | 100 | 7,20 |
| 1"1/2 | 40 | 68R41508 | 155 | 114,3 | 4xØ22 | 22,3 | 130 | 241 | 128 | 123 | 321 | 99,7 | 35,5 | 15,5 | M20 | 14 | 50-F05 | M6 | 174 | 100 | 13,20 |
| 2" | 50 | 68R41510 | 165 | 127 | 8xØ19 | 25,4 | 119,5 | 292 | 144 | 133 | 321 | 109 | 36,5 | 16,5 | M20 | 14 | 50-F05 | M6 | 301,3 | 100 | 17,40 |

Temperature range: -20°C +180°C.
Vacuum: 10-3 torr.
| Position | Part name | Material | N.° pieces |
|---|---|---|---|
| 1 | BODY | A352-LCC | 1 |
| 2 | END CONNECTION | A352-LCC | 1 |
| 3 | BALL | A479-TP316 | 1 |
| 4 | STEM | 17-4-PH | 1 |
| 5 | SCREW | A320 L7 | 4-6 |
| 6 | NUT | CARBON STEEL | 2 |
| 7 | SPRING WASHER | CARBON STEEL | 2 |
| 8 | 90° STOP | AISI 316 | 1 |
| 9 | BUSH | A479-TP316L | 1 |
| 10 | O-RING | FKM | 1 |
| 11 | HANDLE | CARBON STEEL | 1 |
| 12 | STEM SEAL | GRAFITE | 1 |
| 13 | O-RING | FKM | 1 |
| 14 | THRUST WASHER | RPTFE | 1 |
| 15 | O-RING BUSH | A479-TP316L | 1 |
| 16 | BODY SEAT | GRAFITE | 1 |
| 17 | O-RING | FKM | 1 |
| 18 | BALL SEAT | RPTFE | 2 |
| 19 | SCREW | CARBON STEEL | 2 |
| SIZE | DN | CODE | D | Y | Z | H | I | L | G | P | R | A | C | T | E | F | ØN | B | Kv | PN | Kg |
|---|---|---|---|---|---|---|---|---|---|---|---|---|---|---|---|---|---|---|---|---|---|
| 1/2" | 15 | 68F40004 | 95 | 66,7 | 4xØ16 | 14,3 | 69 | 165 | 85 | 95 | 174 | 54 | 21,5 | 6,8 | M12 | 8 | 42-F04 | M5 | 19,2 | 100 | 3,60 |
| 3/4" | 20 | 68F40005 | 115 | 82,6 | 4xØ19 | 15,9 | 78,5 | 190 | 95 | 99 | 174 | 58 | 20,5 | 6,8 | M12 | 8 | 42-F04 | M5 | 35 | 100 | 5,10 |
| 1" | 25 | 68F40006 | 125 | 88,9 | 4xØ19 | 17,5 | 97,5 | 216 | 105 | 100 | 250 | 75 | 29 | 10 | M16 | 10 | 50-F05 | M6 | 64,5 | 100 | 7,20 |
| 1"1/2 | 40 | 68F40008 | 155 | 114,3 | 4xØ22 | 22,3 | 130 | 241 | 128 | 123 | 321 | 99,7 | 35,5 | 15,5 | M20 | 14 | 50-F05 | M6 | 174 | 100 | 13,20 |
| 2" | 50 | 68F40010 | 165 | 127 | 8xØ19 | 25,4 | 119,5 | 292 | 144 | 133 | 321 | 109 | 36,5 | 16,5 | M20 | 14 | 50-F05 | M6 | 301,3 | 100 | 17,40 |